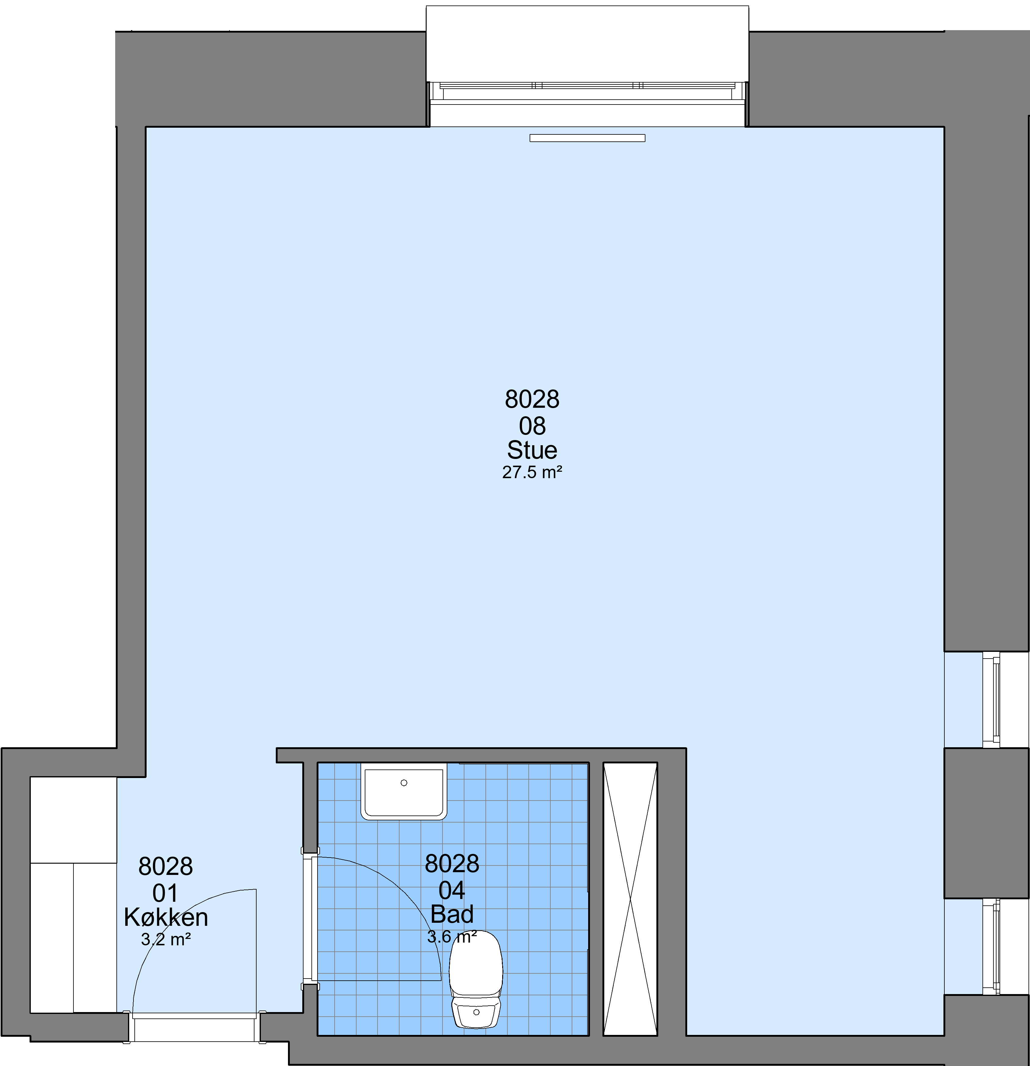
4.050 kr. pr.md
Ungdomsboliger | 1 vær. | 50 m² | Indskud/dp: 15.131 kr.
ØsterBO har 215 ungdomsboliger i Vejle centrum. De er beliggende på Dæmningen, Vissingsgade, Ydunsgade, Ågåde, Thorsgade, Jacob Gades Stræde, Horsensvej, Jellingvej og Grejsdalsvej.
Boligerne er forbeholdt unge under uddannelse, men i perioder, hvor antallet af ungdomsboliger er større end antallet af studerende, er der mulighed for at leje en ungdomsbolig, selv om du ikke er studerende. For mere info, kontakt ØsterBO.
Ventetiden til afdelingen er mellem 0 og 20 måneder.
Faciliteter
Nej
Der er kombineret Køle- Fryseskab i lejemålet
Nej
Pengeløst fællesvaskeri, opkræves via huslejen.
Nej
Nej
Der forefindes stik til internet og tv i lejemålet.
Området
Indkøbsmuligheder
Park & natur
Træning
Offentlig transport
Skole/uddanelse
Institution